Nieuw in verkoop:Euroweg 13, 7051 EB Varsseveld - Foto
Nieuw in verkoop
+4

Euroweg 13 7051 EB Varsseveld

  • Bedrijfshal
  • Bouwjaar 2024
  • 2.038 m² perceeloppervlakte
  • 1.200 m² vloeroppervlakte

Beschrijving

TE KOOP recent gerealiseerd solitair bedrijfspand bestaande uit een royale bedrijfshal en entresol en met buitenterrein, gelegen op het bedrijventerrein Hofskamp-Oost II te Varsseveld.
Dit vrijstaande bedrijfsgebouw combineert een sterke uitstraling met een uitstekende bereikbaarheid. Gelegen op een goede locatie aan de rand van het bedrijventerrein nabij de N318 en op slechts enkele autominuten minuten via de N18 (Varsseveld - Enschede) naar de snelweg A18 richting Arnhem en de A3 richting Duitsland, vormt dit pand een prima knooppunt voor zowel regionale als internationale bedrijvigheid.

Het pand is gebouwd met hoogwaardige materialen en kent een moderne, verzorgde afwerking en veel natuurlijk lichtinval. De bedrijfshal is ontwikkeld voor maximale flexibiliteit met eventuele toekomstige opsplitsingsmogelijkheden. De voorbereiding voor vloerverwarming is per sectie aanwezig, de entresol is al gerealiseerd maar de positie van de trappen zijn nog te bepalen. Tussenwanden kunnen eenvoudig worden gecreëerd dankzij de modulaire constructie en er zijn meerdere overheaddeuren aanwezig.
Kortom een bedrijfspand met flexibele indelingsmogelijkheden en prima locatie!

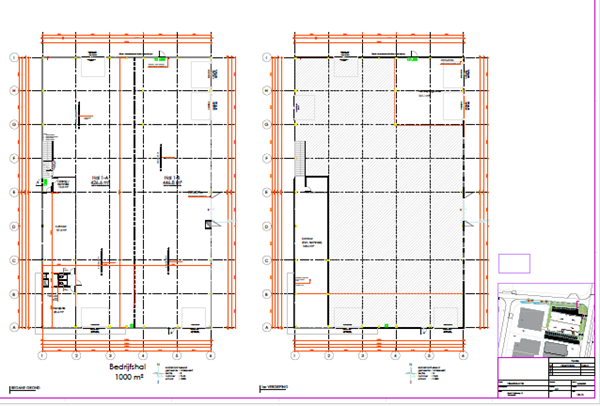
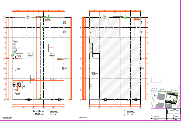
METRAGES
Bedrijfsruimte begane grond: ca. 1.000 m²
Entresol: ca. 200 m²
Perceeloppervlakte 2.038 m²

VOORZIENINGEN
Bedrijfsruimte:
- Meerdere overheaddeuren (4,00 x 4,20 m1 en 4,00 x 3,50 m1)
- Glad afgewerkte betonvloer met voorbereiding vloerverwarming
- Stroomaansluiting 3x 25A
- Voorbereiding rioolaansluiting
- Loopdeuren

BEREIKBAARHEID
Het object is goed bereikbaar voor zowel personen- als vrachtvervoer, gelegen aan rand van het bedrijventerrein op een gunstige locatie en op enkele autominuten van de N18 (Twenteroute) en aansluiting van de oprit van de snelweg A18. Tevens is het Duitse snelwegennet goed te bereiken.

BESTEMMING
Het object is gelegen in het bestemmingsplan/omgevingswet Kom Varsseveld 2010, vastgesteld door de gemeente Oude IJsselstreek (07-03-2012).
De vigerende bestemming is 'Bedrijventerrein' met functie-aanduiding bedrijf t/m categorie 3.2.

OPLEVERINGSNIVEAU
Het uitgangspunt is een oplevering in de huidige staat, leeg en ontruimd en aansluitingen voor water en elektra (3 x 25A).

VRAAGPRIJS
Op aanvraag.
Let op bij deze koop is overdrachtbelasting niet van toepassing.

AANVAARDING
In overleg.

BIJZONDERHEDEN
De eigenaar wenst ca. 280 m2 terug te huren ten behoeve van opslagdoeleinden.

DISCLAIMER
Deze informatie is door ons met de nodige zorgvuldigheid samengesteld. Onzerzijds wordt echter geen enkele aansprakelijkheid aanvaard voor enige onvolledigheid, onjuistheid of anderszins, dan wel de gevolgen daarvan. Alle opgegeven maten en oppervlakten zijn indicatief. De vermelde informatie is van algemene aard en is niet meer dan een uitnodiging om in onderhandeling te treden.

Kaart

Kenmerken

Overdracht

Referentienummer
00706
Prijs
Prijs op aanvraag
Status
Nieuw in verkoop
Aanvaarding
In overleg

Bouw

Type object
Bedrijfshal
Soort bouw
Bestaande bouw
Bouwperiode
2024

Oppervlaktes en inhoud

Perceeloppervlakte
2.038 m²
VVO
1.200 m²
Vrije hoogte
8 m.

Locatie

Ligging
Bedrijventerrein
Bereikbaarheid
Bushalte op 1000 meter tot 1500 meter
Treinstation op 2000 meter tot 3000 meter
Afrit van de snelweg op 4000 meter tot 5000 meter

Uitrusting

Uitrusting
Betonvloer
Overheaddeuren

Kadastrale gegevens

Kadastrale aanduiding
Varsseveld B 7485
Perceeloppervlakte
48 m²
Omvang
Geheel perceel
Eigendomsituatie
Eigen grond
Kadastrale aanduiding
Varsseveld B 7643
Perceeloppervlakte
1.990 m²
Omvang
Geheel perceel
Eigendomsituatie
Eigen grond

Media

Foto's

Plattegronden

Aanbod

Recent bekeken

Bekijk ons volledige aanbod