Nieuw in verkoop:De Hogenkamp 31, 7071 EC Ulft - Foto
Nieuw in verkoop
+11

De Hogenkamp 31 7071 EC Ulft € 825.000,- k.k.

  • Bedrijfshal
  • Bouwjaar 2010
  • 1.898 m² perceeloppervlakte
  • 619 m² vloeroppervlakte

Beschrijving

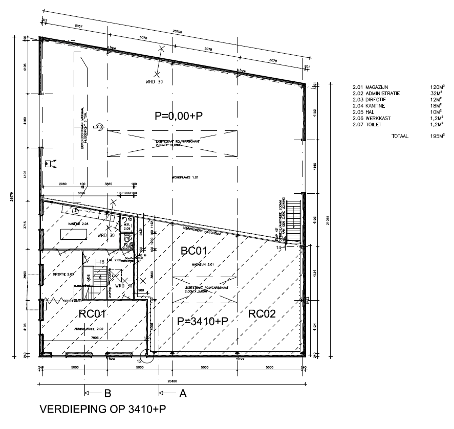
TE KOOP een mooi vrijstaand bedrijfspand met zeer royaal verhard buitenterrein, bestaande uit een bedrijfshal, werkplaats, wasruimte en op de verdieping een magazijn, kantoorruimte en kantine.
De locatie op bedrijventerrein De Rieze is gunstig gelegen ten opzichte van de N317 (Slingerparallel) richting Doetinchem met de op-/afrit naar de snelweg A18.

METRAGE
Bedrijfshal met werkplaats begane grond: ca. 420 m²
Wasruimte, toilet en douche: ca. 17 m²
Kantoor met kantine verdieping: ca. 62 m²
Magazijn/Opslag verdieping: ca. 120 m²

Perceeloppervlakte ca. 1.298 m2

VOORZIENINGEN
- Overheaddeuren
- Krachtstroom (3 x 80A)
- Voorbereiding voor bovenloopkraan
- Toiletgroep en wasruimte
- Kantine met pantry
- Glasvezelaansluiting

BEREIKBAARHEID
Het gehuurde is gunstig gelegen op bedrijventerrein De Rieze ten noorden van Ulft en is goed ontsloten door de N317. Daardoor is er een goede aansluiting op de snelweg A18 Varsseveld-Arnhem en de A3/A12 Arnhem-Oberhausen.
Parkeermogelijkheden op eigen terrein aanwezig.

BESTEMMING
Het object is gelegen in het bestemmingsplan Bedrijventerrein De Rieze 2021, vastgesteld door de gemeente Oude IJsselstreek (11-03-2025).
De vigerende bestemming is 'Bedrijventerrein' met functie-aanduiding opslag en bedrijf t/m categorie 3.1.

OPLEVERINGSNIVEAU
Het uitgangspunt is een oplevering in de huidige staat, leeg en ontruimd en aansluitingen voor gas, water en elektra.

VRAAGPRIJS
€ 825.000,-- kosten koper

AANVAARDING
In overleg, beschikbaar per eind 2026.

DISCLAIMER
Deze informatie is door ons met de nodige zorgvuldigheid samengesteld. Onzerzijds wordt echter geen enkele aansprakelijkheid aanvaard voor enige onvolledigheid, onjuistheid of anderszins, dan wel de gevolgen daarvan. Alle opgegeven maten en oppervlakten zijn indicatief. De vermelde informatie is van algemene aard en is niet meer dan een uitnodiging om in onderhandeling te treden.

Kaart

Kenmerken

Overdracht

Referentienummer
00752
Vraagprijs
€ 825.000,- k.k.
Status
Nieuw in verkoop
Aanvaarding
In overleg

Bouw

Type object
Bedrijfshal
Soort bouw
Bestaande bouw
Bouwperiode
2010

Oppervlaktes en inhoud

Perceeloppervlakte
1.898 m²
VVO
540 m²
Kantoor oppervlakte
79 m²
Totale verhuurbare vloeroppervlakte
619 m²

Locatie

Ligging
Bedrijventerrein
Bereikbaarheid
Bushalte op 500 meter tot 1000 meter
Afrit van de snelweg op 5000 meter of meer

Uitrusting

Uitrusting
Betonvloer
Heater
Krachtstroom
Overheaddeuren
Pantry
Sprinkler
Toilet
Heeft een kantoor
Ja

Kadastrale gegevens

Kadastrale aanduiding
Gendrignen M 2567
Perceeloppervlakte
1.236 m²
Omvang
Geheel perceel
Eigendomsituatie
Eigen grond
Kadastrale aanduiding
Gendringen M 2566
Perceeloppervlakte
662 m²
Omvang
Geheel perceel
Eigendomsituatie
Eigen grond

Media

Foto's

Plattegronden

Aanbod

Recent bekeken

Bekijk ons volledige aanbod