Koop:Silvoldseweg 31, 7061 DL Terborg - Foto
+34

Silvoldseweg 31 7061 DL Terborg € 590.000,- k.k.

  • Winkelruimte
  • Bouwjaar 1920
  • 585 m² perceeloppervlakte
  • 372 m² vloeroppervlakte

Beschrijving

TE KOOP het winkelpand met bovenwoning op een zichtlocatie gelegen aan de doorgaande weg Silvolde - Terborg, niet ver van het station en de winkels in het centrum van Terborg. De bedrijfsruimte is in gebruik geweest als tandartspraktijk. De bovenwoning heeft 2 verdiepingen met 2 keukens, 5 slaapkamers en een royaal dakterras.
Het geheel wordt opgeleverd vrij van huur.

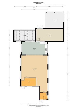
INDELING
Bedrijfsruimte
Begane grond: groot ca. 110 m2.
Entree, wachtruimte, 2 praktijkruimten, kantoor en hal met toiletgroep en kast. Kelder op stahoogte.

Woning
Begane grond: groot ca. 110 m2 met een woonkamer, keuken, berging en terras.
1e Verdieping: groot ca. 152 m2 met 5 slaapkamers, badkamer met douche, bad en toilet, een extra woonkamer met keukentje en dakterras.
Zolder.

VOORZIENINGEN
Bedrijfsruimte
- Deels systeemplafonds met verlichting
- Deels plavuizen en visgraat pvc in de praktijkruimten
- Vloerverwarming begane grond
- Verwarming middels C.V.
- Keuken
- Toiletgroep

BEREIKBAARHEID
Het pand is uitstekend bereikbaar zowel per eigen vervoer als per openbaar vervoer. De snelweg A18 bij Doetinchem is op 5 km bereikbaar en het beschikt over parkeerplaatsen op eigen terrein. Het openbaar vervoersknooppunt van Terborg (bus- en treinstation) is op loopafstand gelegen.

BESTEMMING
Van toepassing is het bestemmingsplan/omgevingswet Kom Terborg 2011 (vastgesteld door de gemeente Oude IJsselstreek op 2012-08-17) met enkelbestemming 'Detailhandel' en met functieaanduiding 'bedrijfswoning'.
Voor een eventuele bestemmingswijziging kunt u informatie inwinnen bij de gemeente Oude IJsselstreek.

OPLEVERINGSNIVEAU
Het uitgangspunt is een oplevering in de huidige staat en aansluitingen voor gas, water en elektra.

VRAAGPRIJS
€ 590.000,-- k.k.

DISCLAIMER
Deze informatie is door ons met de nodige zorgvuldigheid samengesteld. Onzerzijds wordt echter geen enkele aansprakelijkheid aanvaard voor enige onvolledigheid, onjuistheid of anderszins, dan wel de gevolgen daarvan. Alle opgegeven maten en oppervlakten zijn indicatief. De vermelde informatie is van algemene aard en is niet meer dan een uitnodiging om in onderhandeling te treden.

Kaart

Kenmerken

Overdracht

Referentienummer
00529
Vraagprijs
€ 590.000,- k.k.
Aanvaarding
In overleg

Bouw

Type object
Winkelruimte
Soort bouw
Bestaande bouw
Bouwperiode
1920

Oppervlaktes en inhoud

Perceeloppervlakte
585 m²
VVO
372 m²
In units vanaf
372 m²
Verkoopoppervlakte
105 m²

Indeling

Aantal bouwlagen
2

Locatie

Ligging
Aan drukke weg
In woonwijk
Bereikbaarheid
Bushalte binnen 500 meter
Treinstation op 500 meter tot 1000 meter
Afrit van de snelweg op 4000 meter tot 5000 meter

Uitrusting

Heeft een showroom
Ja

Kadastrale gegevens

Kadastrale aanduiding
Wisch B 2819
Perceeloppervlakte
585 m²
Omvang
Geheel perceel
Eigendomsituatie
Eigen grond

Aanbod

Recent bekeken

Bekijk ons volledige aanbod