Nieuw in verkoop:De Venterkamp 7, 7261 AH Ruurlo - Foto
Nieuw in verkoop
+19

De Venterkamp 7 7261 AH Ruurlo € 525.000,- k.k.

  • Bedrijfshal
  • Bouwjaar 1996
  • 2.315 m² perceeloppervlakte
  • 681 m² vloeroppervlakte
  • A Energielabel A

Beschrijving

Te koop functionele vrijstaande bedrijfshal met bedrijfswoning gelegen op bedrijventerrein Venterkamp te Ruurlo. De ideale oplossing voor een werkplaats of opslagruimte in combinatie met wonen. Gelegen op een royaal perceel met tuin en zwembad.

METRAGE
Bedrijfsruimte
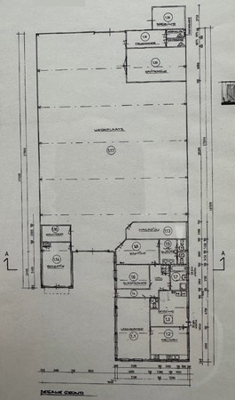
De bedrijfsruimte is ca. 485 m2 groot, bestaande uit een receptie met balie, kantoor, werkplaats, opslagruimte, toiletruimte en kantine met pantry. Het geheel is functioneel van opzet doch eenvoudig afgewerkt.
Inventaris is in overleg ter overname.

Bedrijfswoning
De inpandige bedrijfswoning heeft een woonoppervlakte van ca. 195 m2 en beschikt over een ruime opzet en is aan de voorzijde van het perceel gesitueerd, met indirecte toegang tot de besloten tuin. De tuin is eenvoudig aangelegd en voorzien van een zwembad met een aangename mate van rust en privacy, ondanks de ligging binnen een werkomgeving.

De begane grond bestaat uit een dichte keuken voorzien van keukenapparatuur, woonkamer aan de straatzijde, berging met toiletruimte, hal met badkamer en slaapkamer. Via een vaste trap is de verdieping bereikbaar, de overloop geeft toegang tot 4 (slaap)kamers.
De badkamer op de begane grond is voorzien van een bad en douchehoek alsmede een wastafel.

BESTEMMINGSPLAN
Het perceel maakt onderdeel uit van het bestemmingsplan "Ruurlo, Bedrijventerreinen 2011".
De vigerende bestemming is Bedrijventerrein met functie aanduiding Bedrijven tot en met milieucategorie 3.2 en Bedrijfswoning.

BEREIKBAARHEID
Het object is zeer goed bereikbaar per auto, de N312, N315 en N319 zijn de belangrijkste verkeersaders rondom het bedrijventerrein. Daarnaast is op loopafstand het trein- en busstation gelegen.
Parkeermogelijkheden op eigen terrein.

OPLEVERINGSNIVEAU
Het uitgangspunt is een oplevering in de huidige staat, leeg en ontruimd en aansluitingen voor gas, water en elektra.

VRAAGPRIJS
€ 525.000,-- kosten koper

DISCLAIMER
Deze informatie is door ons met de nodige zorgvuldigheid samengesteld. Onzerzijds wordt echter geen enkele aansprakelijkheid aanvaard voor enige onvolledigheid, onjuistheid of anderszins, dan wel de gevolgen daarvan. Alle opgegeven maten en oppervlakten zijn indicatief. De vermelde informatie is van algemene aard en is niet meer dan een uitnodiging om in onderhandeling te treden.

Kaart

Kenmerken

Overdracht

Referentienummer
00729
Vraagprijs
€ 525.000,- k.k.
Status
Nieuw in verkoop
Aanvaarding
In overleg

Bouw

Type object
Bedrijfshal
Soort bouw
Bestaande bouw
Bouwperiode
1996

Oppervlaktes en inhoud

Perceeloppervlakte
2.315 m²
VVO
485 m²
Kantoor oppervlakte
196 m²
Totale verhuurbare vloeroppervlakte
681 m²

Locatie

Ligging
Bedrijventerrein
Bereikbaarheid
Bushalte op 500 meter tot 1000 meter
Treinstation op 1000 meter tot 1500 meter
Afrit van de snelweg op 5000 meter of meer

Energieverbruik

Energielabel
A

Uitrusting

Uitrusting
Betonvloer
Heeft een kantoor
Ja

Kadastrale gegevens

Kadastrale aanduiding
Ruurlo K 2853
Perceeloppervlakte
405 m²
Omvang
Geheel perceel
Kadastrale aanduiding
Ruurlo K 2875
Perceeloppervlakte
1.910 m²
Omvang
Geheel perceel
Eigendomsituatie
Eigen grond

Media

Plattegronden

Aanbod

Recent bekeken

Bekijk ons volledige aanbod