Onder optie:Buitenschans 51, 7141 EK Groenlo - Foto
Onder optie
+7

Buitenschans 51 7141 EK Groenlo

  • Kantoor
  • Bouwjaar 1991
  • 879 m² perceeloppervlakte
  • 375 m² vloeroppervlakte
  • A Energielabel A

Beschrijving

TE KOOP aangeboden een representatieve kantoorruimte gelegen aan de rand van Groenlo. Verhuur is bespreekbaar.
Het object is gelegen aan een gezamenlijk parkeerterrein waaraan verschillende dienstverlenende bedrijven gevestigd zijn.
In 2023 is het pand volledig gemoderniseerd en verduurzaamd met o.a. isolatieglas.

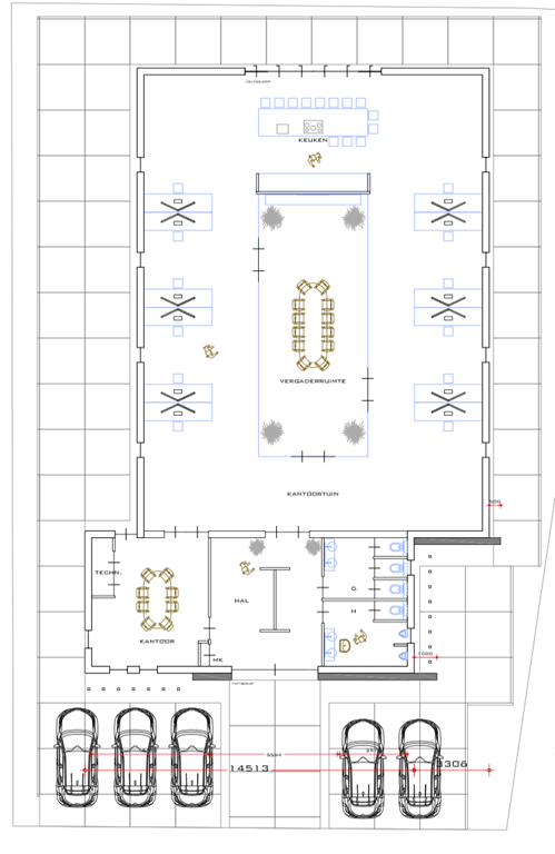
INDELING:
Entree/ontvangstruimte via indrukwekkende entree met verlichting in de traptrede en een naar beide kanten draaiende taatsdeur. vanuit de ontvangstruimte is de toiletgroep bereikbaar.
Kantoor/vergaderruimte (ca. 30 m2); ruime kantoortuin (300 m2) met flexibele indeling t.b.v. werkplekken en een keukenunit/ eiland met naar buiten openslaande tuindeuren met aansluitend terras.

BEREIKBAARHEID
Mede door de ligging nabij de rondweg (N319) is het object goed bereikbaar. Binnen één kilometer zijn de op- en afritten van de regionale verbindingsweg “Twenteroute” (N18) gelegen welke aansluit aan de snelweg A18 richting Arnhem. Het busstation is op loopafstand aanwezig evenals het centrum van Groenlo.
Het pand beschikt over vijf eigen parkeerplaatsen aan de voorzijde.

BESTEMMING
Van toepassing is het bestemmingsplan Woonwijken Groenlo (vastgesteld door de gemeente Oost Gelre op 2012-10-30) met enkelbestemming 'Dienstverlening'.
Binnen deze bestemming zijn meerdere invullingen mogelijk op deze locatie.

VRAAGPRIJS
Op aanvraag.

AANVAARDING
Op korte termijn mogelijk.

DISCLAIMER
Deze informatie is door ons met de nodige zorgvuldigheid samengesteld. Onzerzijds wordt echter geen enkele aansprakelijkheid aanvaard voor enige onvolledigheid, onjuistheid of anderszins, dan wel de gevolgen daarvan. Alle opgegeven maten en oppervlakten zijn indicatief. De vermelde informatie is van algemene aard en is niet meer dan een uitnodiging om in onderhandeling te treden.

Kaart

Kenmerken

Overdracht

Referentienummer
00473
Prijs
Prijs op aanvraag
Status
Onder optie
Aanvaarding
In overleg

Bouw

Type object
Kantoor
Soort bouw
Bestaande bouw
Bouwperiode
1991

Oppervlaktes en inhoud

Perceeloppervlakte
879 m²
VVO
375 m²
In units vanaf
375 m²

Indeling

Aantal bouwlagen
1

Locatie

Bereikbaarheid
Bushalte binnen 500 meter
Afrit van de snelweg op 5000 meter of meer

Energieverbruik

Energielabel
A

Kadastrale gegevens

Kadastrale aanduiding
Groenlo B 5435
Perceeloppervlakte
879 m²
Omvang
Geheel perceel
Eigendomsituatie
Eigen grond

Media

Foto's

Plattegronden

Aanbod

Recent bekeken

Bekijk ons volledige aanbod