Verkocht:Keppelseweg 24A, 7001 CG Doetinchem - Foto
Verkocht
+18

Keppelseweg 24A 7001 CG Doetinchem

  • Bedrijfshal
  • Bouwjaar 1975
  • 6.375 m² perceeloppervlakte
  • 3.528 m² vloeroppervlakte

Beschrijving

TE KOOP een multifunctionele bedrijfsruimte met bedrijfshallen, voormalige showroom en kantoren, gelegen op loopafstand van het centrum en een zichtlocatie aan de Keppelseweg 24A en 26A te Doetinchem. Het betreft bedrijfsruimte dat in gebruik is geweest bij een opleidingscentrum en bevat diverse extra's zoals kleedruimte met douchegelegenheid en kantine.

AFMETINGEN
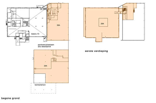
Keppelseweg 24A
Bedrijfshal: ca. 413 m²
Voormalige showroom: ca. 637 m²
Kantoren: ca. 253 m²

Keppelseweg 26A
Bedrijfshal begane grond: ca. 753 m²
Kantoren begane grond: ca. 214 m²
Kantine 1e verdieping: ca. 204 m²
Kantoren 2e verdieping: ca. 1.054 m²

VOORZIENINGEN
- Overheaddeuren
- Krachtstroom
- Kleedruimte met douchegelegenheid
- Toiletgroep
- Verwarming middels radiatoren in de kantoren
- Verwarming middels indirect gestookte heaters in de bedrijfsruimte
- Liftinstallatie op nr 26 voor het bereiken van 1e en 2e verdieping

BEREIKBAARHEID
Het object is goed te bereiken en gelegen aan een drukke in- en uitvalsweg van Doetinchem. Via de Europaweg is de op-/afrit van de snelweg A18 binnen 10 autominuten te bereiken, die aansluit op de A12 richting Arnhem of de N18 (Twenteroute) richting Enschede.
Het centrum van Doetinchem is op loopafstand gelegen en tevens is er een bushalte in de nabijheid.
Er zijn voldoende parkeermogelijkheden op eigen terrein.

BESTEMMING
Van toepassing is het bestemmingsplan ''Stedelijk Gebied - 2021" met enkelbestemming Bedrijf.
De functieaanduiding is bedrijven met bijbehorende bedrijfsactiviteiten in de categorie 1 en 2.

OPLEVERINGSNIVEAU
Het uitgangspunt is een oplevering in de huidige staat en aansluitingen voor gas, water en elektra.

VRAAGPRIJS
Op aanvraag.

AANVAARDING
In overleg.

DISCLAIMER
Deze informatie is door ons met de nodige zorgvuldigheid samengesteld. Onzerzijds wordt echter geen enkele aansprakelijkheid aanvaard voor enige onvolledigheid, onjuistheid of anderszins, dan wel de gevolgen daarvan. Alle opgegeven maten en oppervlakten zijn indicatief. De vermelde informatie is van algemene aard en is niet meer dan een uitnodiging om in onderhandeling te treden.

Kaart

Kenmerken

Overdracht

Referentienummer
00449
Vraagprijs
€ 2.000.000,- k.k.
Status
Verkocht
Aanvaarding
In overleg

Bouw

Type object
Bedrijfshal
Soort bouw
Bestaande bouw
Bouwperiode
1975

Oppervlaktes en inhoud

Perceeloppervlakte
6.375 m²
VVO
1.803 m²
Kantoor oppervlakte
1.725 m²
Totale verhuurbare vloeroppervlakte
3.528 m²

Locatie

Ligging
Aan drukke weg
Bereikbaarheid
Bushalte binnen 500 meter
Busknooppunt op 1000 meter tot 1500 meter
Treinstation op 1000 meter tot 1500 meter

Uitrusting

Uitrusting
Betonvloer
Heeft een kantoor
Ja

Kadastrale gegevens

Kadastrale aanduiding
Ambt-Doetinchem O 1137
Perceeloppervlakte
6.375 m²
Omvang
Geheel perceel
Eigendomsituatie
Eigen grond
Kadastrale aanduiding
Ambt-Doetinchem O 1142
Omvang
Appartementsrecht of complex
Eigendomsituatie
Eigen grond
Indexnummer
1

Media

Plattegronden

Aanbod

Recent bekeken

Bekijk ons volledige aanbod