Koop:Acacialaan 147, 7004 AP Doetinchem - Foto
+20

Acacialaan 147 7004 AP Doetinchem

  • Horecapand
  • Bouwjaar 1950
  • 1.605 m² perceeloppervlakte
  • 680 m² vloeroppervlakte

Beschrijving

TE KOOP, markante en vrijstaande horecagelegenheid 'Café Masselink' gelegen in de wijk Oosseld in Doetinchem. Deze horecagelegenheid is al vele jaren een begrip in Doetinchem en omgeving bij o.a. de Graafschap-fans. De zaal is groot ca. 225 m² en het café beschikt over ca. 35 zitplaatsen. Het object heeft parkeerplaatsen op eigen terrein. Kleine terrasmogelijkheid is aanwezig.

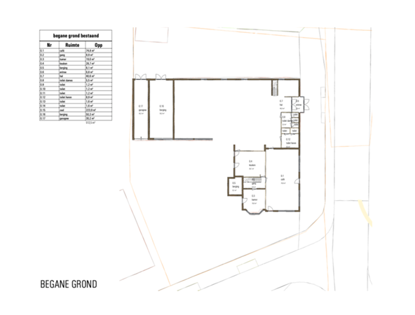
INDELING
begane grond
Zaal: ca. 225 m2
Café: ca. 75 m2
Keuken: ca. 28 m2

1e verdieping
Totaal ca. 170 m2, verdeeld over meerdere vertrekken en ingericht als woonhuis en zolder.

2e verdieping
met vast trap bereikbare zolder ca. 43 m2.

VOORZIENINGEN/INRICHTING
Compleet ingerichte keuken, er staat kwalitatief goede apparatuur voor bereiding van gerechten en de catering. Er is voldoende spoelgelegenheid, koelen en vriezen en opslag (kelder en bergingen) zijn aanwezig.
De zaal voor de gasten is volledig ingericht, voorzien van een parketvloer, een (los) podium alsook een complete bar. Deze ruimte is uiterst geschikt voor het organiseren van feesten en partijen.
Het café heeft een bar met 2 taps, vaste banken en tafels en stoelen.
De entree/hal is voorzien van een garderobe alsmede gescheiden toiletgroepen.
Tevens zijn er bergingen/garage aanwezig voor opslag.
Op de verdieping zijn 5 (slaap)kamers en een badkamer gesitueerd alsmede een grote zolder.
Overname van het inventaris incl. biljarttafel is in overleg met de eigenaar mogelijk.

BEREIKBAARHEID
De Acacialaan / Dennenweg is een doorgaande weg door de wijk Ooseld, op korte afstand van de op- en afrit van de snelweg A18 en het bosrijke gebied Koekendaal en De Wrange. Het object is met de auto goed bereikbaar. De snelweg A18 is binnen 5 autominuten bereikbaar, met de aansluiting op de A12 richting Arnhem of de N18 (Twenteroute) richting Enschede. De binnenstad van Doetinchem is op nog geen 10 minuten gelegen, tevens is er een bushalte op 10 minuten loopafstand.

PARKEREN
Bij deze horecagelegenheid behoren voldoende parkeerplaatsen op eigen terrein.

BESTEMMING
Van toepassing is het bestemmingsplan/omgevingswet Stedelijk Gebied 2021 (vastgesteld door de gemeente Doetinchem op 2021-06-24) met de bestemming "Horeca" en als functieaanduiding horeca tot en met categorie 2. Mogelijkheden zijn o.a. cafés en bars, zalencentrum (zonder regulier gebruik t.b.v. feesten en muziekevenementen), hotels, lunchroom, bistro etc.
Het café en zalencentrum zijn nog in gebruik bij de huidige eigenaren. Drank- en horecavergunning zijn actief en er is geen brouwerijverplichting.

VRAAGPRIJS
Op aanvraag.
Levering is met kosten koper maar vrij van BTW.

DISCLAIMER
Deze informatie is door ons met de nodige zorgvuldigheid samengesteld. Onzerzijds wordt echter geen enkele aansprakelijkheid aanvaard voor enige onvolledigheid, onjuistheid of anderszins, dan wel de gevolgen daarvan. Alle opgegeven maten en oppervlakten zijn indicatief. De vermelde informatie is van algemene aard en is niet meer dan een uitnodiging om in onderhandeling te treden.

Kaart

Kenmerken

Overdracht

Referentienummer
00571
Prijs
Prijs op aanvraag
Aanvaarding
In overleg

Bouw

Type object
Horecapand, Zalen-/partycentrum
Woonlaag
1e woonlaag
Soort bouw
Bestaande bouw
Bouwperiode
1950

Oppervlaktes en inhoud

Perceeloppervlakte
1.605 m²
VVO
680 m²
Verkoopoppervlakte
300 m²

Locatie

Ligging
In woonwijk
Lokale voorzieningen
Supermarkt binnen 500 meter
Bereikbaarheid
Bushalte op 1000 meter tot 1500 meter
Treinstation op 1500 meter tot 2000 meter
Afrit van de snelweg op 1000 meter tot 1500 meter

Kadastrale gegevens

Kadastrale aanduiding
Ambt-Doetinchem L 2190
Perceeloppervlakte
1.605 m²
Omvang
Geheel perceel
Eigendomsituatie
Eigen grond

Media

Plattegronden

Aanbod

Recent bekeken

Bekijk ons volledige aanbod