Verhuurd:Netwerkweg 3, 7251 KV Vorden - Foto
Verhuurd
+24

Netwerkweg 3 7251 KV Vorden

  • Bedrijfshal
  • Bouwjaar 2001
  • 5.520 m² perceeloppervlakte
  • 2.035 m² vloeroppervlakte
  • A++ Energielabel A++

Beschrijving

Te huur een multifunctioneel bedrijfscomplex (totaal ca 2.000m²) met kantoren en royaal verhard en omheind buitenterrein (ca. 2.400 m²) op bedrijventerrein 't Werkveld' in Vorden. Het complex ligt op een mooie hoeklocatie aan de entree van het bedrijventerrein. De kantoorruimte beschikt over een A++ label.

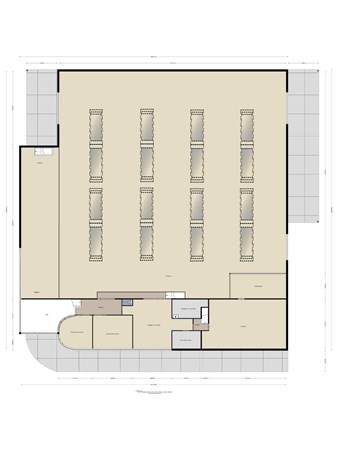
INDELING/METRAGE
Bedrijfshal ca. 1.260 m²
Magazijn ca. 405 m² waarvan ca. 175m² op de 1e verdieping
Kantoorruimte ca. 370 m² waarvan ca. 100m² op de verdieping

Omheind bestraat buitenterrein ca. 2.400 m² afsluitbaar middels elektrisch bedienbare toegangspoort.

VOORZIENINGEN
Kantoorruimte:
- Centrale ontvangsthal v.v. plavuizenvloer met receptiebalie
- Systeemplafonds met ledverlichting
- Vloerbedekking in de kantoorruimten
- Verwarming middels vloerverwarming en radiatoren
- Airconditioning alsook mechanische ventilatie
- Pantry
- Toiletgroep
- Was- en kleedruimte
Hal:
- Lichtstraten
- Verwarming middels heaters
- Krachtstroom
- Meerdere kraanbanen (500 kg, 2.500 kg en 5.000 kg)

BEREIKBAARHEID
Het complex is goed bereikbaar vanwege de ligging op korte afstand van de N319 (de verbindingsweg van Zutphen naar Winterswijk).
Openbaar vervoer (trein en bus) is op loopafstand aanwezig.

BESTEMMING
Van toepassing is het bestemmingsplan 'Stedelijk gebied Bronckhorst' van de gemeente Bronckhorst, vastgesteld d.d. 31-03-2016.
Enkelbestemming: Bedrijventerrein.
Binnen deze bestemming zijn uitsluitend bedrijven toegestaan voorzover deze voorkomen in categorie 1, 2, 3.1. en 3.2.

OPLEVERINGSNIVEAU
Het uitgangspunt is een oplevering in de huidige staat, leeg en ontruimd en aansluitingen voor gas, water en elektra.

HUURPRIJS
€ 125.000,- per jaar, te vermeerderen met BTW.

SERVICEKOSTEN
Het gehuurde is voorzien van eigen aansluitingen voor water en elektra. Leveringen en diensten (servicekosten) dienen nader overeengekomen te worden.

HUURTERMIJN
In overleg. Kortere huurperiodes bespreekbaar.

HUUROPZEGTERMIJN
12 maanden, doch afhankelijk van de overeen te komen huurtermijn.

BETALINGEN
Huur- en servicekosten inclusief btw per kwartaal of maand vooruit.

AANVAARDING
In overleg, doch op korte termijn bespreekbaar.

OMZETBELASTING
Bij het vaststellen van de huurprijs is uitgangspunt geweest dat de huurder het gehuurde voor tenminste het bij de wet vastgestelde of nader vast te stellen minimum percentage blijvend zal gebruiken voor prestaties die recht geven op aftrek van btw, zodanig dat kan worden geopteerd voor belaste (ver-)huur. Indien een niet btw belaste verhuur wordt overeengekomen zal een (beperkte) opslag op de huurprijs worden berekend.

ZEKERHEIDSTELLING
In het geval van een 'standaard' situatie dient huurder een bankgarantie te stellen ter grootte van 3 maanden huur te vermeerderen met eventuele servicekosten en BTW.

HUUROVEREENKOMST
Huurovereenkomst volgens het model door de Raad voor Onroerende Zaken.

HUURPRIJSAANPASSING
Jaarlijks, op basis van het Consumenten Prijsindexcijfer (CPI), reeks Alle Huishoudens (2015=100) voor het eerst één jaar na huuringang.

BIJZONDERHEDEN
De bedrijfsruimte wordt aangeboden onder voorbehoud goedkeuring verhuurder.

DISCLAIMER
Deze informatie is door ons met de nodige zorgvuldigheid samengesteld. Onzerzijds wordt echter geen enkele aansprakelijkheid aanvaard voor enige onvolledigheid, onjuistheid of anderszins, dan wel de gevolgen daarvan. Alle opgegeven maten en oppervlakten zijn indicatief. De vermelde informatie is van algemene aard en is niet meer dan een uitnodiging om in onderhandeling te treden.

Kaart

Kenmerken

Overdracht

Referentienummer
00520
Huurprijs
€ 125.000,- per jaar
Inrichting
Niet gestoffeerd
Inrichting
Niet gemeubileerd
Status
Verhuurd
Aanvaarding
In overleg

Bouw

Type object
Bedrijfshal
Soort bouw
Bestaande bouw
Bouwperiode
2001

Oppervlaktes en inhoud

Perceeloppervlakte
5.520 m²
VVO
1.665 m²
In units vanaf
1.665 m²
Kantoor oppervlakte
370 m²
Totale verhuurbare vloeroppervlakte
2.035 m²
Vrije hoogte
5,9 m.

Locatie

Ligging
Bedrijventerrein
Bereikbaarheid
Bushalte binnen 500 meter
Treinstation op 1000 meter tot 1500 meter

Energieverbruik

Energielabel
A++

Uitrusting

Aantal parkeerplaatsen
11
Uitrusting
Betonvloer
Heater
Krachtstroom
Lichtstraten
Overheaddeuren
Toilet
Heeft een kantoor
Ja

Kadastrale gegevens

Kadastrale aanduiding
Vorden B 2432
Perceeloppervlakte
5.520 m²
Omvang
Geheel perceel
Eigendomsituatie
Eigen grond

Aanbod

Recent bekeken

Bekijk ons volledige aanbod