Huur:Anholtseweg 10, 7091 HA Dinxperlo - Foto
+26

Anholtseweg 10 7091 HA Dinxperlo € 99.000,- /jr

  • Bedrijfshal
  • 3.700 m² perceeloppervlakte
  • 2.555 m² vloeroppervlakte

Beschrijving

Voor verhuur aangeboden: Anholtseweg 10 en 12 te Dinxperlo.
Dit bijna volledige gerenoveerde bedrijfspand bestaat uit een grote bedrijfsruimte van in totaal ca. 1.930 m² groot met aan de voorzijde kantoorruimte op de begane grond en op de verdieping, totaal groot ca. 625 m².
Koop is bespreekbaar.

De markante entree geeft de voorzijde een mooie uitstraling en de moderne inrichting verhoogt de sfeer.
De hal is voorzien van meerdere overheaddeuren en laadkuil.
De locatie op bedrijventerrein De Rietstap is gunstig gelegen ten opzichte van de op-/afrit van de snelweg A3/A12 Arnhem Oberhausen.

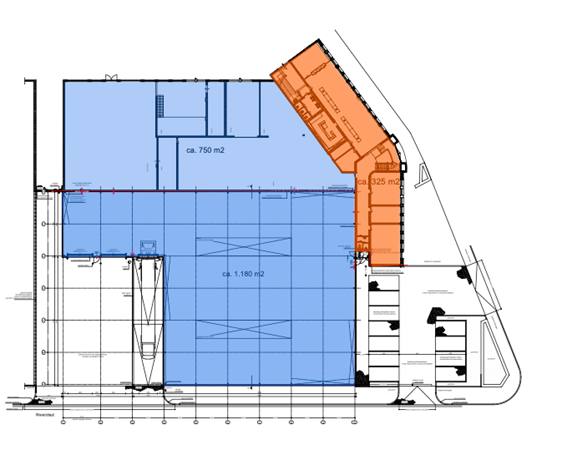
METRAGE
Logistieke hal begane grond: ca. 1.180 m²
Bedrijfsruimte begane grond: ca. 750 m²
Kantoorruimte begane grond: ca. 325 m²
Kantoor verdieping: ca. 300 m²
Opslagverdieping: ca. 750 m²

VOORZIENINGEN
- Overheaddeuren (4,00 x 4,80 m1)
- Laadkuil met overheaddeur (3,00 x 3,20 m1)
- Toiletgroep
- Kantine met pantry
- Stellingen in de logistieke hal zijn tegen meerprijs erbij te huren

BEREIKBAARHEID
Het object is goed bereikbaar en direct gelegen aan de grens met Duitsland op een gunstige locatie op ca. 10 autominuten van de oprit van de snelweg A3/A12 Arnhem-Oberhausen. Via de N317 richting Ulft is Doetinchem en de oprit naar de A18 ook makkelijk te bereiken.
Parkeermogelijkheden op eigen terrein aanwezig.

BESTEMMING
Het object is gelegen in het bestemmingsplan Kern Dinxperlo 2012, vastgesteld door de gemeente Aalten (2013-02-26).
De vigerende bestemming is 'Bedrijventerrein' met functie-aanduiding bedrijf t/m categorie 3.1.

OPLEVERINGSNIVEAU
Het uitgangspunt is een oplevering in de huidige staat, leeg en ontruimd en aansluitingen voor water en elektra (3 x 25A).

HUURPRIJS
€ 99.000,- per jaar te vermeerderen met BTW

SERVICEKOSTEN
Het gehuurde is voorzien van zelfstandige aansluitingen voor gas, water en elektra.

HUURTERMIJN
In overleg.

HUUROPZEGTERMIJN
12 maanden, doch afhankelijk van de overeen te komen huurtermijn.

BETALINGEN
Huur- en servicekosten inclusief btw per kalendermaand vooruit.

AANVAARDING
In overleg.

OMZETBELASTING
Bij het vaststellen van de huurprijs is uitgangspunt geweest dat de huurder het gehuurde voor tenminste het bij de wet vastgestelde of nader vast te stellen minimum percentage blijvend zal gebruiken voor prestaties die recht geven op aftrek van btw, zodanig dat kan worden geopteerd voor belaste (ver-)huur. Indien een niet btw belaste verhuur wordt overeengekomen zal een (beperkte) opslag op de huurprijs worden berekend.

ZEKERHEIDSTELLING
In het geval van een 'standaard' situatie dient huurder een bankgarantie te stellen ter grootte van 3 maanden huur te vermeerderen met eventuele servicekosten en BTW.

HUUROVEREENKOMST
Huurovereenkomst volgens het model door de Raad voor Onroerende Zaken.

HUURPRIJSAANPASSING
Jaarlijks, op basis van het Consumenten Prijsindexcijfer (CPI), reeks Alle Huishoudens (2015=100) voor het eerst één jaar na huuringang.

BIJZONDERHEDEN
- De bedrijfsruimte wordt aangeboden onder voorbehoud goedkeuring verhuurder.
- Koop is bespreekbaar

DISCLAIMER
Deze informatie is door ons met de nodige zorgvuldigheid samengesteld. Onzerzijds wordt echter geen enkele aansprakelijkheid aanvaard voor enige onvolledigheid, onjuistheid of anderszins, dan wel de gevolgen daarvan. Alle opgegeven maten en oppervlakten zijn indicatief. De vermelde informatie is van algemene aard en is niet meer dan een uitnodiging om in onderhandeling te treden.

Kaart

Kenmerken

Overdracht

Referentienummer
00605
Huurprijs
€ 99.000,- per jaar
Aanvaarding
In overleg

Bouw

Type object
Bedrijfshal
Soort bouw
Bestaande bouw

Oppervlaktes en inhoud

Perceeloppervlakte
3.700 m²
VVO
1.930 m²
In units vanaf
1.930 m²
Kantoor oppervlakte
625 m²
Totale verhuurbare vloeroppervlakte
2.555 m²
Vrije hoogte
8 m.

Locatie

Ligging
Bedrijventerrein
Bereikbaarheid
Bushalte op 500 meter tot 1000 meter
Afrit van de snelweg op 5000 meter of meer

Uitrusting

Uitrusting
Betonvloer
Heater
Krachtstroom
Lichtstraten
Loading docks
Overheaddeuren
Pantry
Toilet
Heeft een kantoor
Ja

Kadastrale gegevens

Kadastrale aanduiding
Dinxperlo A 6977
Perceeloppervlakte
18.010 m²
Omvang
Deel perceel
Eigendomsituatie
Eigen grond

Aanbod

Recent bekeken

Bekijk ons volledige aanbod